
Commercial:
Self Storage: Architect of Record - Building Design, Construction Documentation, Construction Administration through Certificate of Occupancy.
Self Storage: Site Planning and Concept Development Services, assistance in exploration of entitlements.
Residential:
Custom Home, Wilmette, Illinois
Renovation and Addition to a home in Lakeside, Michigan
Renovation and Addition to a home in Berrien County, Michigan
Renovation and Addition to a home in Michiana, Michigan
Addition and Renovation to a home in Winnetka, Illinois
Addition to a home in Gary, Indiana
Custom Home, Miller Beach, Gary Indiana
Studio Level 1 produced this design in respose to the rural context of the site. The metal clad, single story building vernacular is prevelent in this area of central Ohio. The project's buildings are clad in white and gray, steel, board and batten siding and feature dark gray standing seam metal roofs. The roof slopes are low to minimize overall building heights.
The 82,800 SF facility is comprised of both climate and non-climate controlled rental units, ranging is size fron 25 SF to 500 SF of useable area.
Studio Level 1 is the Architect of Record for this project.


















Concept design through contract administration. Project completion spring 2018.

Preliminary Site Planning

Preliminary design concepts are explored 3 dimensionally in Revit.

Contract documents are developed in conjunction with value engineering consultations with the owner and general contractor.

Services Provided: site inspection, product submittal and shop drawing review, field coordination. Self storage building shown above, Chicago, Illinois

Project Delivery Method: Design Build, Studio Level 1 provided Concept Design thru Schematic Design services for this West Coast 94,700 SF facility.

Project Delivery Method: Design Build, Studio Level 1 provided Concept Design thru Schematic Design services for this 150,000 SF facility Currently under construction .

Studio Level 1 coordinated the site and building development with a local civil engineering firm. Jointly they prepared Zoning and Planning department documentation.

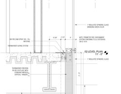
Reinforced concrete retaining walls and foundation.
Primary structural system: steel on a 10' x 10' module.
Exterior wall consists of 6" metal studs and corrugated metal (skins) siding, above split face concrete block base.

Windows either align with the interior corridor system, or display storage unit doors to communicate the building use.

Two metal profiles in both white and grey are used either vertically or horizontally. The split face block base adds a third texture and color to the composition.

Studio Level 1 is currently working with the developer of this project on another similar size building in the same state.







Office and Commercial Planning Concept Documentation

Provide Planning and Zoning studies based topographic data, entitlements and development proforma

Documentation of stone restoration and a new stone clad porch detailed in the period style of the original building. Interior modifications consist of, bathroom improvements, interior woodwork, trim and fireplace surrounds. An addition to the existing garage adds space for a third car and supports a roof terrace and garden.
Current status: bidding phase for spring 2019 start date

For a visionary client we documented their design to obtain a building permit and provide contract documentation for the entire project.
Status: Complete

Topographic survey with true site elevations generates the topography of the model, which is then modified as the design evolves.

The views of the kitchen dining area to the right were created by placing a camera
in the model and taking "pictures".

This page was created to explore the idea of several different ceiling heights in the kitchen and dining area.
Copyright © 2023 Studio Level 1 - All Rights Reserved.
Powered by GoDaddy